Działka Łaziska Górne, ul. Jesionowa
Łaziska Górne Pokaż na mapie ›
Dodane: Czwartek, 12 Luty, 2026 10:51
1 366 000 zł
Szczegóły ogłoszenia
- Kategoria: Działki i grunty / Sprzedaż
- Sprzedaż:Pośrednik
- Cena: 1 366 000 zł
Opis oferty
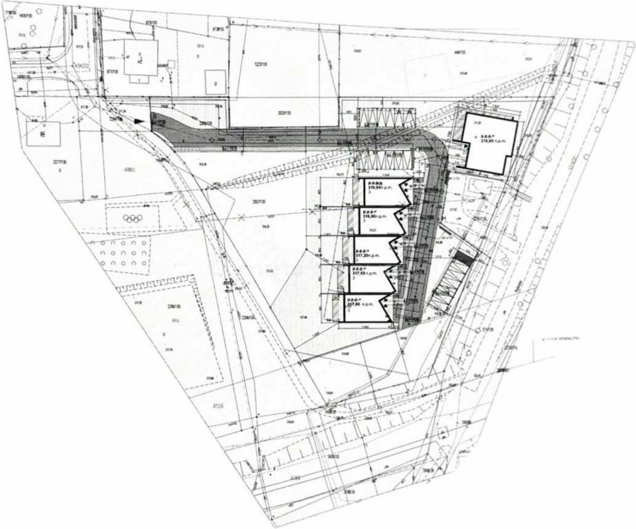
GOTOWIEC INWESTYCYJNY DZIAŁKA Z PRAWOMOCNYM PNB ŁAZISKA GÓRNENa sprzedaż atrakcyjna działka inwestycyjna o powierzchni 5 144 m², zlokalizowana w spokojnej i dobrze skomunikowanej części Łazisk Górnych. Nieruchomość stanowi kompletnie przygotowany grunt pod realizację inwestycji mieszkaniowej idealna propozycja dla deweloperów oraz inwestorów szukających projektu ready to build.
Działka posiada prawomocne pozwolenie na budowę wraz z kompletnym projektem osiedla mieszkaniowego, co pozwala na natychmiastowe rozpoczęcie prac budowlanych i znacząco skraca czas realizacji inwestycji.
Najważniejsze atuty nieruchomości:
powierzchnia: 5 144 m²
prawomocne pozwolenie na budowę
gotowy i pełny projekt osiedla mieszkaniowego
teren w pełni przygotowany pod inwestycję
dostęp do wszystkich mediów: prąd, woda, gaz, kanalizacja w drodze
regularny kształt działki sprzyjający optymalnej zabudowie
Lokalizacja
Nieruchomość położona jest w cichej, zielonej części miasta, zapewniającej komfort przyszłym mieszkańcom, a jednocześnie oferującej szybki dojazd do Katowic, Tychów oraz Mikołowa. Doskonałe połączenie spokoju i dostępności komunikacyjnej zwiększa atrakcyjność inwestycji oraz jej potencjał sprzedażowy.
To rzadka oferta gotowego gruntu inwestycyjnego z PNB, pozwalająca na szybkie i bezpieczne rozpoczęcie realizacji projektu mieszkaniowego.
Idealna propozycja dla inwestorów ceniących czas, bezpieczeństwo i wysoki potencjał zwrotu.
Czy wiesz, że możemy przygotować dla Ciebie prezentację on-line nieruchomości? Skontaktuj się z naszym Agentem i zapytaj o szczegóły.
Pomimo, iż Doradcy Metrohouse przykładają szczególną staranność do rzetelnego prezentowania informacji o nieruchomości, nie zawsze jest możliwa weryfikacja wszystkich danych przekazanych od osób trzecich. Niniejsza prezentacja oferty nie jest ofertą w rozumieniu Kodeksu Cywilnego i ma charakter wyłącznie informacyjny.
- Wypromuj ogłoszenie
- Zgłoś naruszenie
- Drukuj ulotkę
- Edytuj/usuń ogłoszenie
- Udostępnij ogłoszenie
- Dodaj na Facebook













